この物件の情報は「掲載日」時点の内容になります。
お探しの物件の最新の状況は以下ボタンよりお問い合わせお願いします。
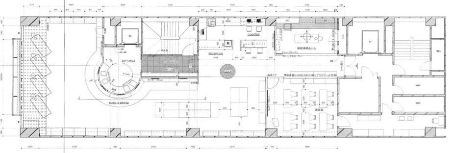
お問い合わせ大阪市中央区本町に位置する「JPS本町ビルディング」
ビジネスに最適な環境を提供します。最寄り駅は大阪メトロ堺筋線の堺筋本町駅で、徒歩わずか2分の距離にあります。御堂筋線、本町駅にも徒歩6分の立地。
この利便性の高い立地は、通勤やお客様との打ち合わせに便利です。 この物件は8階建てのビルの3階に位置し、角部屋として明るく開放感のあるオフィススペースを実現しています。1フロア1テナントの設計で、プライバシーが守られながらも、他のテナントとの距離感を保てる点も魅力です。業種は事務所に特化しており、ビジネス活動に必要な環境が整っています。共用部はリノベーションが施されており、清潔感のある空間で快適に仕事を行うことができます。エレベーター完備で、荷物の運搬や来客時の移動もスムーズです。また、共用トイレや給湯室が設置されているため、日常の業務に必要な設備も充実しています。個別空調が完備されているため、季節に応じた快適な温度調整が可能で、在宅勤務や長時間の業務にも対応できます。 周辺環境も充実しており、オフィス街としてビジネスの中心地に位置しているため、さまざまな業種の企業が集まっています。近隣には飲食店やカフェも多く、ランチや仕事帰りのリフレッシュに便利です。買い物施設も近く、日常生活の利便性が高いエリアです。 家賃は月額784,300円で、ビジネスの成長を支えるための投資としても検討する価値があります。快適なオフィス環境を求める企業や、在宅勤務が増加する中での新しい働き方を模索する方々にとって、JPS本町ビルディングは非常に適した選択肢です。ぜひ一度、現地をご覧いただき、その魅力を体感してみてください。
内覧の際は現地待ち合わせやお迎えでの対応も相談可能です。
オフィス物件以外にも店舗や住居、売買物件の取り扱いもしております。
不動産のことはなんでもお気軽にご相談ください。
お問い合わせお待ちしております。

部屋ID:R010132
賃料: 784,300円
共益費・管理費:235,290円(税別)
最寄駅1:大阪メトロ堺筋線「堺筋本町」駅まで 徒歩2分
現状:空室
所在地: 大阪府大阪市中央区本町2丁目3-9
成約状況:空室
物件種別:ビル
物件階層:8階建地下2階付き
完成年月:昭和50年4月(築51年)
取引形態:仲介
EV:あり
掲載日時:2026-01-31
所在階数:3階
方角:
敷金:ー円
礼金:ー円(税別)
保証金:2,000,000円
解約引:ー円
その他費用:ー
火災保険:ー円(非課税)
契約種別:定期借家
契約期間:10年