この物件の情報は「掲載日」時点の内容になります。
お探しの物件の最新の状況は以下ボタンよりお問い合わせお願いします。
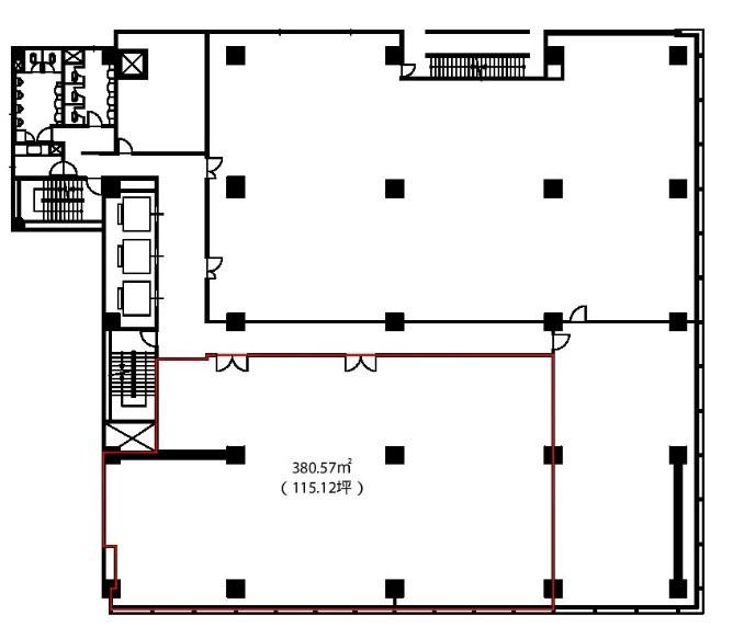
お問い合わせ大阪市中央区に位置する「東京建物本町ビル」は、ビジネスに適した優れた立地を誇るオフィスビルです。最寄り駅は大阪メトロ御堂筋線の本町駅で、徒歩わずか2分というアクセスの良さが魅力です。周囲はオフィス街が広がり、ビジネスの中心地として多くの企業が集まるエリアです。 この物件は地上9階建ての4階に位置しており、角部屋として利用可能です。角地にあるため、自然光が豊かに差し込み、明るく開放感のあるオフィス環境を提供します。仕事の効率を高めるための快適なスペースを確保することができるでしょう。 設備面でも充実しており、駐車場完備、エレベーターも設置されていますので、重い荷物の運搬や来客時の対応もスムーズです。共用のトイレや給湯室が整っているため、スタッフ同士のコミュニケーションも円滑に行えます。また、個別空調が完備されているため、季節を問わず快適な温度環境を維持できます。OAフロアの設計により、配線やレイアウトの自由度も高く、柔軟なオフィスづくりを実現できます。 24時間使用可能なため、フレキシブルな働き方にも対応できることが大きなポイントです。在宅勤務やリモートワークの導入が進む中、必要に応じてオフィスを利用することで、効果的に業務を進めることができます。 周辺環境としては、飲食店やカフェが豊富にあり、ランチやリフレッシュに最適なスポットが多数存在します。また、銀行や郵便局も近くにあり、ビジネスに必要なサービスも充実しています。さらに、商業施設も近隣に多く、仕事帰りの買い物にも便利です。 「東京建物本町ビル」は、ビジネスの拠点として理想的な環境を提供する物件です。快適なオフィス環境と利便性の高い立地を求める方にとって、ぜひ一度ご検討いただきたい物件です。ビジネスの活性化を図るために、この機会にぜひお問い合わせください。
内覧の際は現地待ち合わせやお迎えでの対応も相談可能です。
お問い合わせお待ちしております。

部屋ID:R010109
賃料: 相談
共益費・管理費:賃料に含む
最寄駅1:大阪メトロ御堂筋線「本町」駅まで 徒歩2分
現状:空室
所在地: 大阪府大阪市中央区本町3丁目4-8
成約状況:空室
物件種別:ビル
物件階層:9階建
完成年月:昭和45年2月(築56年)
取引形態:仲介
EV:-
掲載日時:2026-05-01
所在階数:4階
方角:
敷金:相談
礼金:ー円(税別)
保証金:ー円
解約引:ー円
その他費用:ー
火災保険:ー円(非課税)
契約種別:定期借家
契約期間:3年