この物件の情報は「掲載日」時点の内容になります。
お探しの物件の最新の状況は以下ボタンよりお問い合わせお願いします。
お問い合わせ
部屋ID:R010023
賃料: 1,030,820円
共益費・管理費:147,260円(税別)
最寄駅1:大阪メトロ御堂筋線「本町」駅まで 徒歩3分
最寄駅2:大阪メトロ四つ橋線「本町」駅まで 徒歩5分
最寄駅3:大阪メトロ堺筋線「堺筋本町」駅まで 徒歩5分
現状:空室
所在地: 大阪府大阪市中央区本町2丁目6-5
成約状況:空室
物件種別:ビル
物件階層:8階建地下1階付き
完成年月:平成元年3月(築37年)
取引形態:仲介
EV:なし
掲載日時:2026-05-01
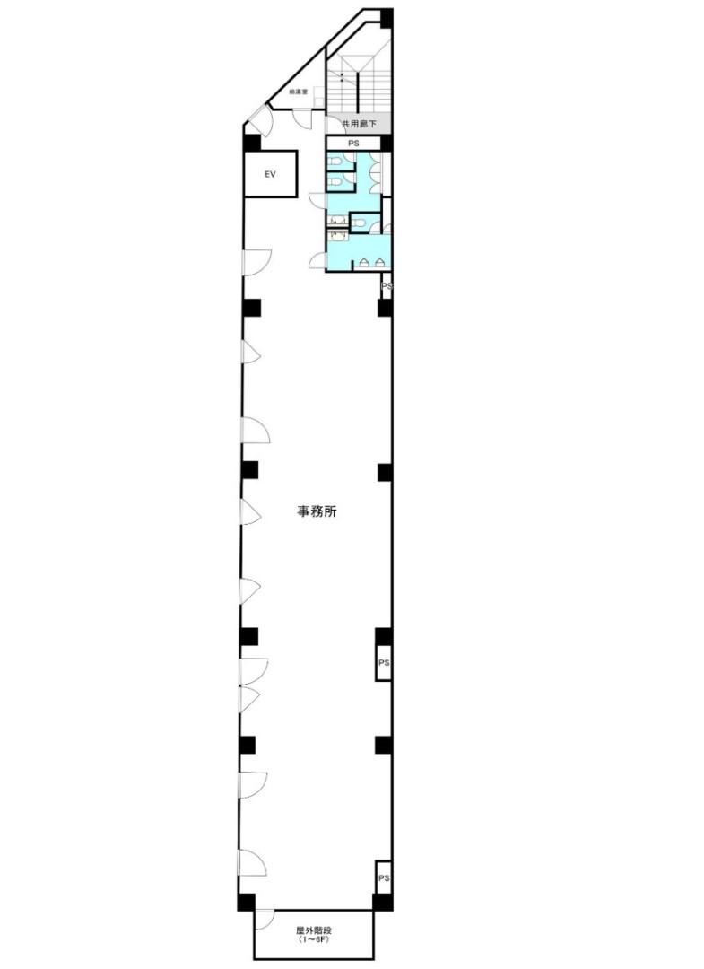
所在階数:3階
方角:
敷金:6,184,920円
礼金:2,267,804円(税別)
保証金:ー円
解約引:ー円
その他費用:ー
火災保険:ー円(非課税)
契約種別:定期借家
契約期間:3年