この物件の情報は「掲載日」時点の内容になります。
お探しの物件の最新の状況は以下ボタンよりお問い合わせお願いします。
お問い合わせモジュール新大阪は、大阪市淀川区西中島に位置し、ビジネスや店舗運営に最適な物件です。最寄り駅は大阪メトロ御堂筋線の西中島南方駅で、徒歩5分の距離にあり、交通アクセスが非常に便利です。
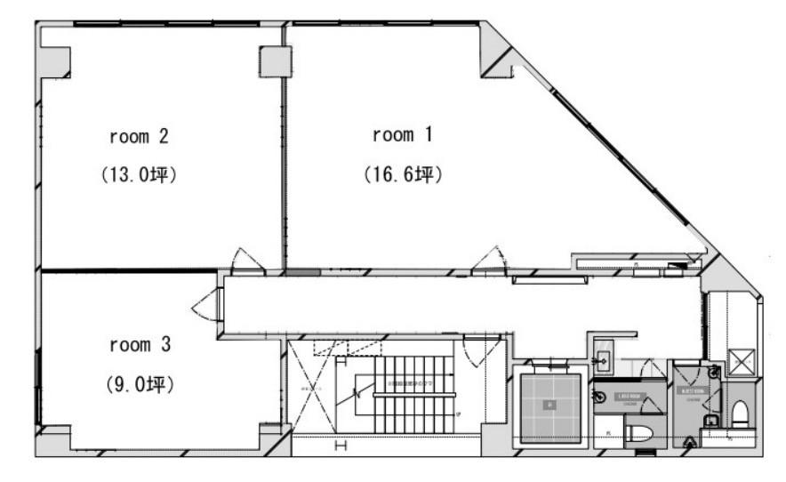
周辺にはオフィス街が広がっており、あらゆるビジネスシーンに対応可能な立地です。 この物件は、地上10階建ての10階に位置する角部屋です。明るく開放感のあるスペースは、事務所やエステ、ネイルサロンなど、さまざまな業種に適しています。また、共用部は雰囲気溢れるライティングに室内もシンプルで使い勝手の良いリノベーションが行われており、快適な環境での業務をサポートします。
業種の選択肢が広がるため、多様なニーズに応えることができる点も魅力です。 物件内にはエレベーターが完備されており、上層階への移動がスムーズです。また、共用のトイレや給湯室も整っているため、業務の効率を高めることができます。特に在宅勤務が増えている中、オフィスとしての利用だけでなく、生活拠点としても利用できる点が特徴です。周囲には飲食店やコンビニエンスストアも多く、日常の買い物にも困りません。 モジュール新大阪の周辺環境は、ビジネスに必要な利便性が整っています。最寄り駅からのアクセスが良いため、通勤や顧客の来訪にもストレスを感じさせません。さらに、周囲にはオフィスビルが立ち並んでおり、ビジネスチャンスを広げる可能性も大いにあります。 家賃は117,000円で、立地や設備を考慮すると納得のいく価格設定です。快適な環境でのビジネス展開と、利便性の高い立地を両立させたこの物件は、事務所や店舗をお探しの方にとって理想的な選択肢となるでしょう。
モジュール新大阪で、新たなビジネスのスタートを切ってみてはいかがでしょうか。
大阪の玄関口でもある新大阪駅すぐの立地
カフェスタイルのコミュニティルームなんかも設置されているこちらのデザイナーズビル是非いかがでしょうか?

部屋ID:R010105
賃料: 117,000円
共益費・管理費:26,000円(税別)
最寄駅1:大阪メトロ御堂筋線「西中島南方」駅まで 徒歩5分
最寄駅2:JR京都線「新大阪」駅まで 徒歩8分
最寄駅3:大阪メトロ御堂筋線「新大阪」駅まで 徒歩8分
現状:空室
所在地: 大阪府大阪市淀川区西中島5丁目1-4
成約状況:空室
物件種別:ビル
物件階層:10階建
完成年月:昭和60年2月(築41年)
取引形態:仲介
EV:あり
掲載日時:2025-11-29
所在階数:10階
方角:
敷金:351,000円
礼金:ー円(税別)
保証金:ー円
解約引:ー円
その他費用:ー
火災保険:ー円(非課税)
契約種別:
契約期間: