この物件の情報は「掲載日」時点の内容になります。
お探しの物件の最新の状況は以下ボタンよりお問い合わせお願いします。
お問い合わせ
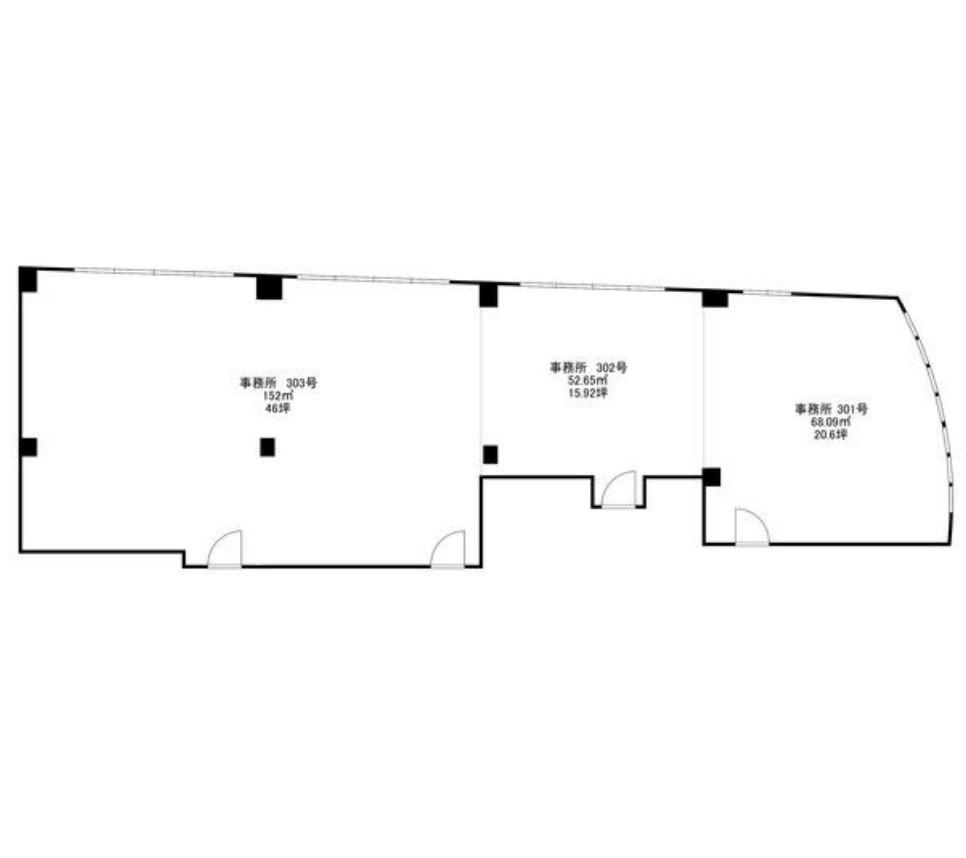
部屋ID:R009693
賃料: 617,100円
共益費・管理費:45,375円(税別)
最寄駅1:大阪メトロ堺筋線「恵美須町」駅まで 徒歩7分
最寄駅2:南海本線「難波」駅まで 徒歩11分
現状:空室
所在地: 大阪府大阪市浪速区日本橋西2丁目8-3
成約状況:空室
物件種別:ビル
物件階層:5階建
完成年月:平成3年7月(築35年)
取引形態:仲介
EV:あり
掲載日時:2026-01-09
所在階数:3階
方角:
敷金:1,234,200円
礼金:1,234,200円(税別)
保証金:0円
解約引:ー円
その他費用:ー
火災保険:ー円(非課税)
契約種別:
契約期間:2年