この物件の情報は「掲載日」時点の内容になります。
お探しの物件の最新の状況は以下ボタンよりお問い合わせお願いします。
お問い合わせ
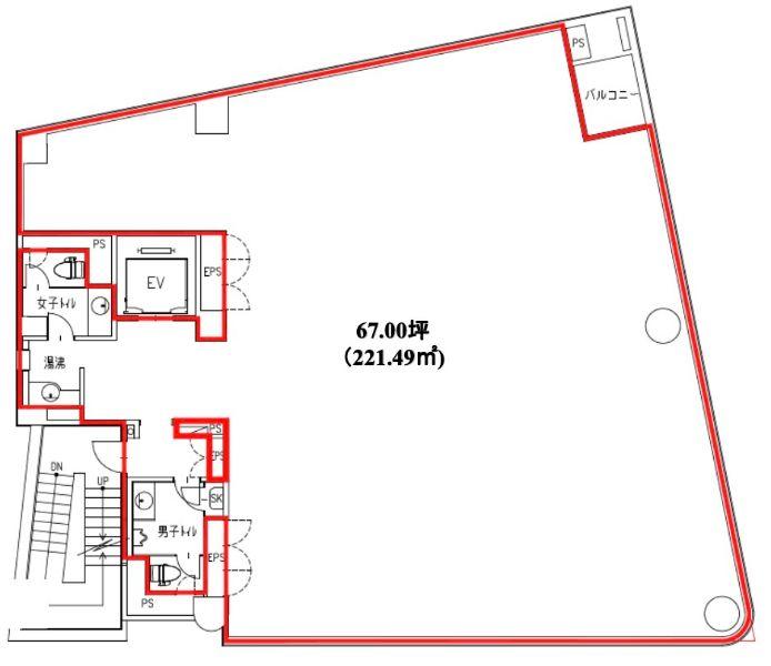
部屋ID:R008795
賃料: ー
共益費・管理費:ー円(税別)
最寄駅1:東京メトロ丸ノ内線「新宿三丁目」駅まで 徒歩3分
現状:空室
所在地: 東京都新宿区新宿5丁目6-1
成約状況:空室
物件種別:ビル
物件階層:10階建
完成年月:平成元年3月(築37年)
取引形態:ー
EV:あり
掲載日時:2026-02-07
所在階数:6階
方角:
敷金:ー円
礼金:ー円(税別)
保証金:ー円
解約引:ー円
その他費用:ー
火災保険:ー円(非課税)
契約種別:普通借家
契約期間:2年