この物件の情報は「掲載日」時点の内容になります。
お探しの物件の最新の状況は以下ボタンよりお問い合わせお願いします。
お問い合わせ
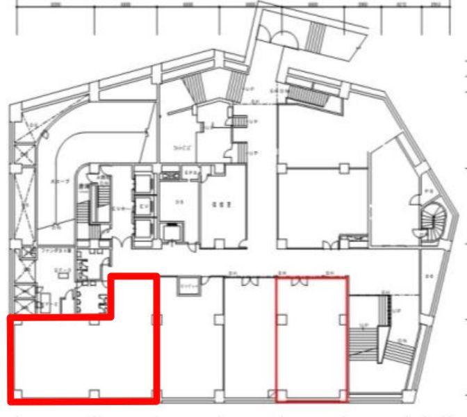
部屋ID:R008636
賃料: 相談
共益費・管理費:賃料に含む
最寄駅1:大阪メトロ四つ橋線「西梅田」駅まで 徒歩1分
現状:空室
所在地: 大阪府大阪市北区曽根崎新地2丁目2-16
成約状況:空室
物件種別:ビル
物件階層:9階建地下4階付き
完成年月:昭和40年12月(築60年)
取引形態:ー
EV:あり
掲載日時:2024-12-17
所在階数:階
方角:
敷金:ー円
礼金:ー円(税別)
保証金:ー円
解約引:ー円
その他費用:ー
火災保険:ー円(非課税)
契約種別:
契約期間: