この物件の情報は「掲載日」時点の内容になります。
お探しの物件の最新の状況は以下ボタンよりお問い合わせお願いします。
お問い合わせ
部屋ID:R005144
賃料: 131,760円
共益費・管理費:65,880円(税別)
最寄駅1:大阪メトロ谷町線「谷町四丁目」駅まで 徒歩1分
最寄駅2:大阪メトロ中央線「谷町四丁目」駅まで 徒歩1分
最寄駅3:大阪メトロ谷町線「天満橋」駅まで 徒歩5分
現状:空室
所在地: 大阪府大阪市中央区谷町3丁目2-11
成約状況:空室
物件種別:ビル
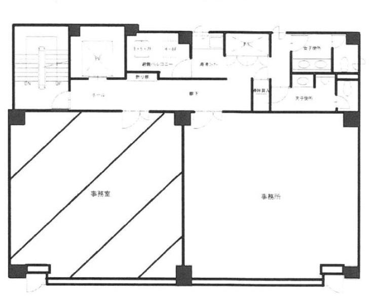
物件階層:9階建
完成年月:平成8年10月(築30年)
取引形態:一般媒介
EV:あり
掲載日時:2022-06-23
所在階数:7階
方角:
敷金:263,520円
礼金:263,520円(税別)
保証金:ー円
解約引:ー円
その他費用:施設利用分担金/月額150円x坪数(税別)
火災保険:ー円(非課税)
契約種別:普通借家契約
契約期間:2年