この物件の情報は「掲載日」時点の内容になります。
お探しの物件の最新の状況は以下ボタンよりお問い合わせお願いします。
お問い合わせ
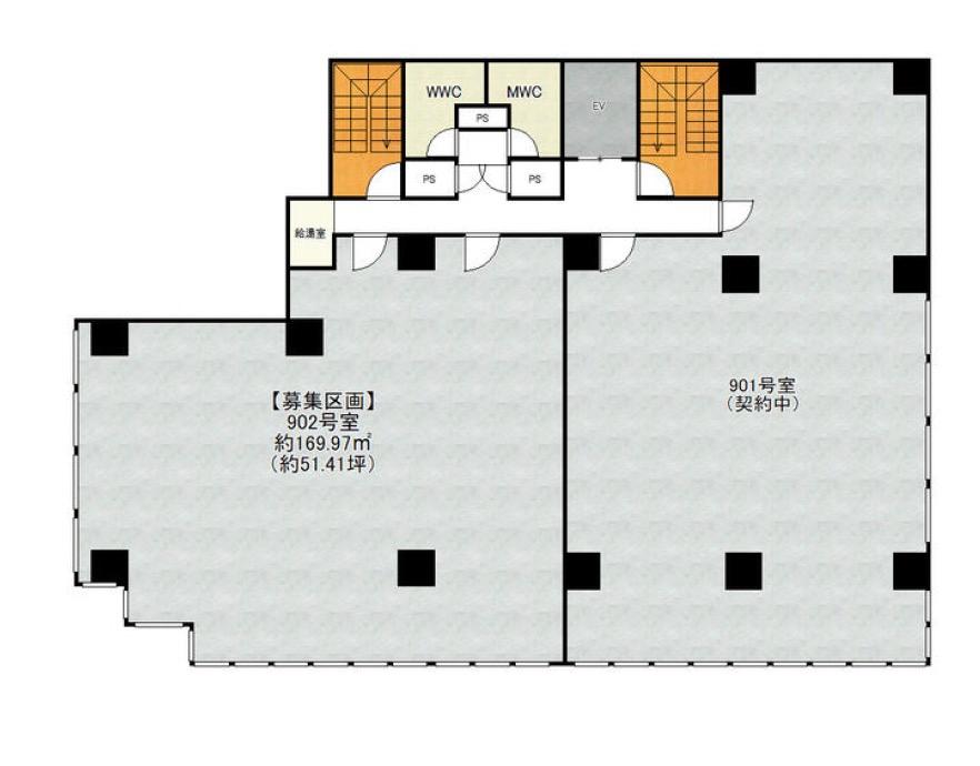
部屋ID:R004335
賃料: 565,510円
共益費・管理費:0円(税別)
最寄駅1:大阪メトロ四つ橋線「肥後橋」駅まで 徒歩7分
最寄駅2:大阪メトロ四つ橋線「本町」駅まで 徒歩10分
現状:空室
所在地: 大阪府大阪市西区京町堀1丁目17-16
成約状況:空室
物件種別:ビル
物件階層:10階建
完成年月:昭和62年 4月(築39年)
取引形態:一般媒介
EV:あり
掲載日時:2022-05-11
所在階数:9階
方角:
敷金:3,393,060円
礼金:ー円(税別)
保証金:ー円
解約引:ー円
その他費用:ー
火災保険:ー円(非課税)
契約種別:普通借家
契約期間:2年