この物件の情報は「掲載日」時点の内容になります。
お探しの物件の最新の状況は以下ボタンよりお問い合わせお願いします。
お問い合わせ大阪府大阪市北区に位置する「天満橋永ビル」
京阪本線「天満橋駅」から徒歩4分の距離にあり、通勤やビジネスの拠点に適した賃貸マンションです。3階部分に位置するこちらの物件は、家賃190,000円で、業種は事務所としてご利用いただけます。共用部から室内までフルリノベーション工事が行われており、かなり綺麗に仕上がっております。 このビルにはエレベーターが完備されており、上層階へのアクセスもスムーズです。
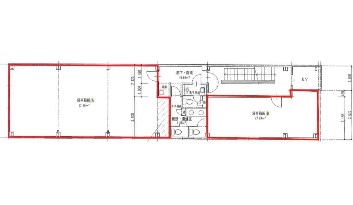
ワンフロア2戸の設計となっておりますが、今回ワンフロアでのご提供。 分割に関してはご相談ください。
また、共用のトイレや給湯室が設けられているため、業務を行う上での利便性が高まります。共用設備がしっかりと整っていることで、日常的な業務を快適に行うことができるでしょう。 周辺の環境も魅力的です。天満エリアは、オフィスビルや飲食店、カフェが集まっているため、仕事の合間に気軽に食事や休憩ができる場所が豊富にあります。また、近隣には公園もあり、リフレッシュするためのスポットも点在しています。ビジネスの合間に自然を感じられるのは大きなポイントです。 交通の便が良好で、天満橋駅からは他の主要エリアへのアクセスも便利です。京阪本線を利用すれば、ビジネスの拠点を広げることが可能です。また、大阪市内の様々なスポットへのアクセスが良いことから、取引先との打ち合わせや商談にも便利です。 在宅勤務が増えている昨今、天満橋永ビルのような快適なオフィス空間を持つことは、仕事の効率を高めるためにも重要です。リノベーションを通じて、自分だけの職場環境を作ることができるため、クリエイティブな発想を促進することが期待できます。 この物件は、仕事を心地よく行うための条件が揃ったオフィススペースとしておすすめです。ぜひ一度、現地を訪れてその魅力を実感してみてはいかがでしょうか。天満橋永ビルで、新たなビジネスライフを始めるチャンスをお見逃しなく。

部屋ID:R010093
賃料: 190,000円
共益費・管理費:55,000円(税別)
最寄駅1:京阪本線「天満橋」駅まで 徒歩4分
現状:空室
所在地: 大阪府大阪市北区天満2丁目1-27
成約状況:空室
物件種別:賃貸マンション
物件階層:地下6階付き
完成年月:昭和49年4月(築52年)
取引形態:仲介
EV:1基
掲載日時:2026-01-31
所在階数:3階
方角:
敷金:ー円
礼金:ー円(税別)
保証金:570,000円
解約引:ー円
その他費用:ー
火災保険:ー円(非課税)
契約種別:
契約期間: