この物件の情報は「掲載日」時点の内容になります。
お探しの物件の最新の状況は以下ボタンよりお問い合わせお願いします。
お問い合わせ
部屋ID:R009885
賃料: 905,920円
共益費・管理費:0円(税別)
最寄駅1:大阪メトロ御堂筋線「本町」駅まで 徒歩1分
最寄駅2:大阪メトロ御堂筋線「淀屋橋」駅まで 徒歩6分
最寄駅3:大阪メトロ中央線「本町」駅まで 徒歩1分
現状:空室
所在地: 大阪府大阪市中央区安土町3丁目4-10
成約状況:空室
物件種別:ビル
物件階層:7階建地下1階付き
完成年月:昭和39年3月(築62年)
取引形態:仲介
EV:2基
掲載日時:2026-05-01
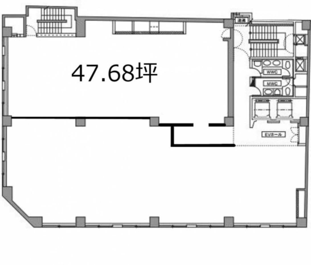
所在階数:5階
方角:
敷金:5,435,520円
礼金:ー円(税別)
保証金:ー円
解約引:ー円
その他費用:ー
火災保険:ー円(非課税)
契約種別:
契約期間: