この物件の情報は「掲載日」時点の内容になります。
お探しの物件の最新の状況は以下ボタンよりお問い合わせお願いします。
お問い合わせ
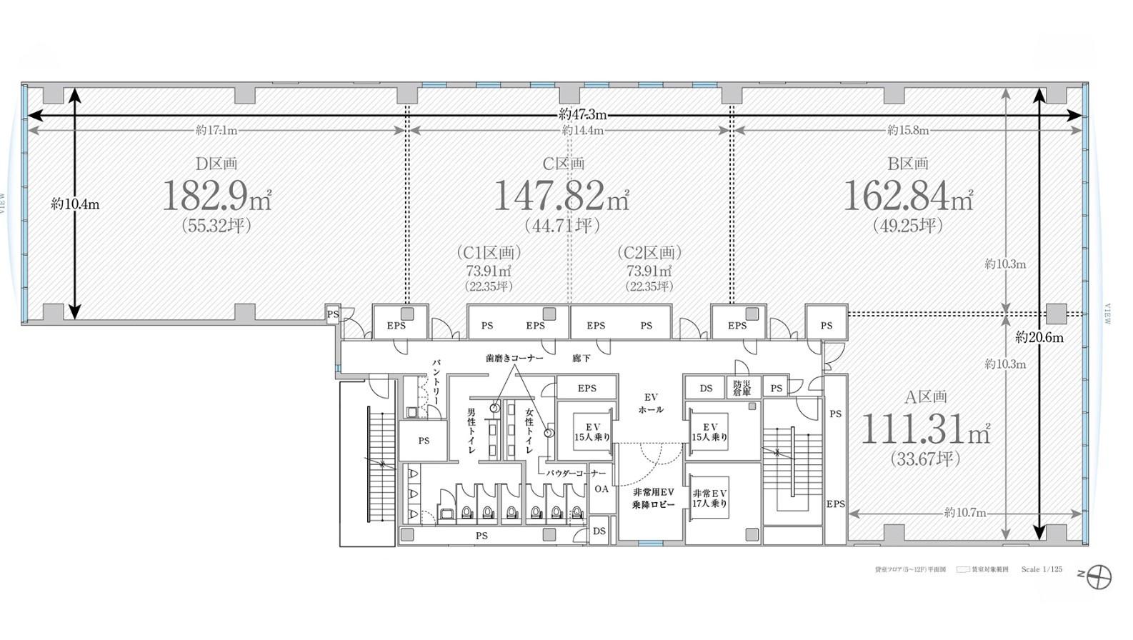
部屋ID:R009798
賃料: 相談
共益費・管理費:賃料に含む
最寄駅1:大阪メトロ御堂筋線「新大阪」駅まで 徒歩5分
現状:空室
所在地: 大阪府大阪市淀川区宮原4丁目2-10
成約状況:空室
物件種別:ビル
物件階層:12階建
完成年月:令和3年6月(築5年)
取引形態:仲介
EV:あり
掲載日時:2026-02-06
所在階数:8階
方角:
敷金:相談
礼金:ー円(税別)
保証金:ー円
解約引:ー円
その他費用:ー
火災保険:ー円(非課税)
契約種別:
契約期間: