この物件の情報は「掲載日」時点の内容になります。
お探しの物件の最新の状況は以下ボタンよりお問い合わせお願いします。
お問い合わせ
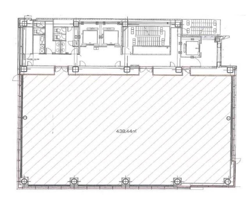
部屋ID:R009600
賃料: 相談
共益費・管理費:賃料に含む
最寄駅1:大阪メトロ御堂筋線「淀屋橋」駅まで 徒歩5分
最寄駅2:大阪メトロ堺筋線「北浜」駅まで 徒歩4分
最寄駅3:京阪本線「淀屋橋」駅まで 徒歩5分
現状:空室
所在地: 大阪府大阪市中央区今橋2丁目6-14
成約状況:空室
物件種別:ビル
物件階層:10階建
完成年月:平成20年1月(築18年)
取引形態:仲介
EV:3基
掲載日時:2026-05-01
所在階数:10階
方角:
敷金:ー円
礼金:ー円(税別)
保証金:ー円
解約引:ー円
その他費用:ー
火災保険:ー円(非課税)
契約種別:
契約期間: