この物件の情報は「掲載日」時点の内容になります。
お探しの物件の最新の状況は以下ボタンよりお問い合わせお願いします。
お問い合わせ
部屋ID:R009584
賃料: 384,000円
共益費・管理費:72,000円(税別)
最寄駅1:大阪メトロ御堂筋線「なんば」駅まで 徒歩3分
最寄駅2:大阪メトロ四つ橋線「なんば」駅まで 徒歩3分
最寄駅3:阪神なんば線「大阪難波」駅まで 徒歩4分
現状:空室
所在地: 大阪府大阪市中央区西心斎橋2丁目4-2
成約状況:空室
物件種別:ビル
物件階層:9階建地下1階付き
完成年月:昭和57年4月(築43年)
取引形態:仲介
EV:あり
掲載日時:2025-08-09
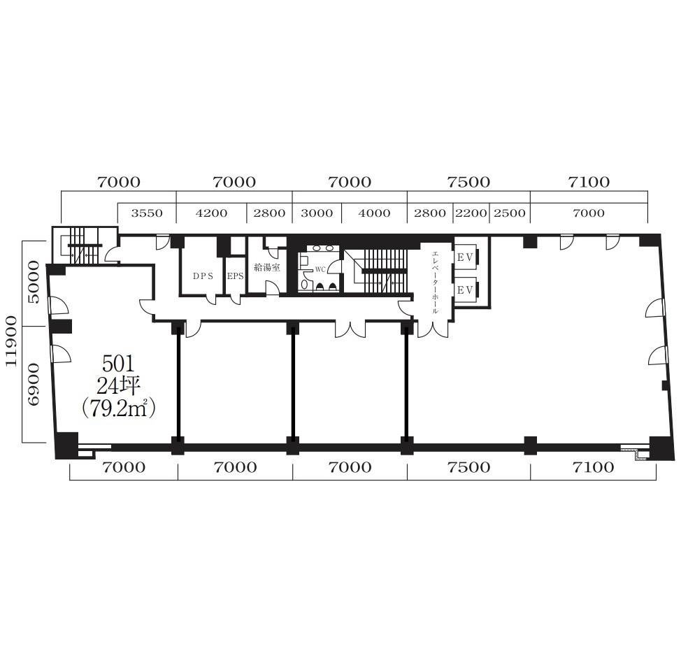
所在階数:5階
方角:
敷金:ー円
礼金:384,000円(税別)
保証金:ー円
解約引:ー円
その他費用:ー
火災保険:ー円(非課税)
契約種別:定期借家
契約期間: