この物件の情報は「掲載日」時点の内容になります。
お探しの物件の最新の状況は以下ボタンよりお問い合わせお願いします。
お問い合わせ
部屋ID:R009561
賃料: 125,000円
共益費・管理費:65,000円(税別)
最寄駅1:大阪メトロ御堂筋線「本町」駅まで 徒歩3分
現状:空室
所在地: 大阪府大阪市中央区本町3丁目4-14
成約状況:空室
物件種別:ビル
物件階層:6階建地下1階付き
完成年月:(築ー)
取引形態:仲介
EV:あり
掲載日時:2026-01-09
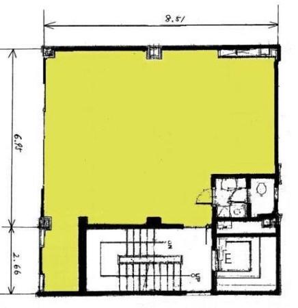
所在階数:5階
方角:
敷金:ー円
礼金:ー円(税別)
保証金:600,000円
解約引:500,000円
その他費用:電気基本料9,381円/月
火災保険:ー円(非課税)
契約種別:
契約期間: