この物件の情報は「掲載日」時点の内容になります。
お探しの物件の最新の状況は以下ボタンよりお問い合わせお願いします。
お問い合わせ
部屋ID:R009167
賃料: 180,000円
共益費・管理費:ー円(税別)
最寄駅1:阪急京都本線「相川」駅まで 徒歩1分
最寄駅2:阪急京都本線「上新庄」駅まで 徒歩18分
最寄駅3:JR京都線「吹田」駅まで 徒歩16分
現状:空室
所在地: 大阪府大阪市東淀川区相川2丁目20-3
成約状況:空室
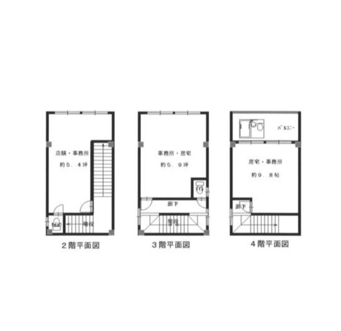
物件種別:ビル
物件階層:地下4階付き
完成年月:昭和48年3月(築53年)
取引形態:ー
EV:-
掲載日時:2026-01-09
所在階数:階
方角:
敷金:180,000円
礼金:180,000円(税別)
保証金:ー円
解約引:ー円
その他費用:ー
火災保険:ー円(非課税)
契約種別:
契約期間:2年