この物件の情報は「掲載日」時点の内容になります。
お探しの物件の最新の状況は以下ボタンよりお問い合わせお願いします。
お問い合わせ
部屋ID:R008668
賃料: 429,000円
共益費・管理費:99,000円(税別)
最寄駅1:JR東西線「新福島」駅まで 徒歩5分
最寄駅2:阪神本線「福島」駅まで 徒歩5分
最寄駅3:京阪中之島線「中之島」駅まで 徒歩5分
現状:空室
所在地: 大阪府大阪市福島区福島1丁目1-12
成約状況:空室
物件種別:賃貸マンション
物件階層:15階建地下1階付き
完成年月:平成20年4月(築18年)
取引形態:ー
EV:あり
掲載日時:2026-01-09
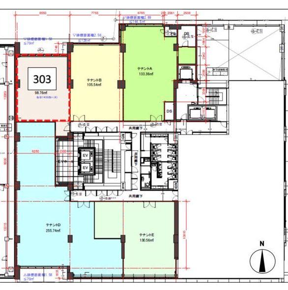
所在階数:3階
方角:
敷金:1,950,000円
礼金:858,000円(税別)
保証金:ー円
解約引:ー円
その他費用:ー
火災保険:ー円(非課税)
契約種別:
契約期間: