この物件の情報は「掲載日」時点の内容になります。
お探しの物件の最新の状況は以下ボタンよりお問い合わせお願いします。
お問い合わせ
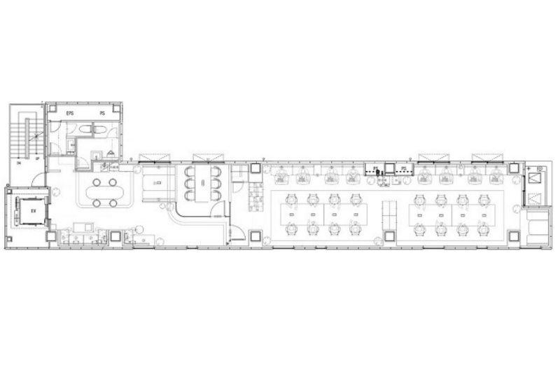
部屋ID:R008594
賃料: 1,015,674円
共益費・管理費:24,200円(税別)
最寄駅1:都営浅草線「浅草橋」駅まで 徒歩2分
現状:空室
所在地: 東京都台東区浅草橋2丁目29-2
成約状況:空室
物件種別:ビル
物件階層:9階建
完成年月:令和5年9月(築3年)
取引形態:ー
EV:あり
掲載日時:2024-12-17
所在階数:8階
方角:
敷金:5,540,040円
礼金:ー円(税別)
保証金:ー円
解約引:ー円
その他費用:ー
火災保険:ー円(非課税)
契約種別:普通借家
契約期間:2年