この物件の情報は「掲載日」時点の内容になります。
お探しの物件の最新の状況は以下ボタンよりお問い合わせお願いします。
お問い合わせ
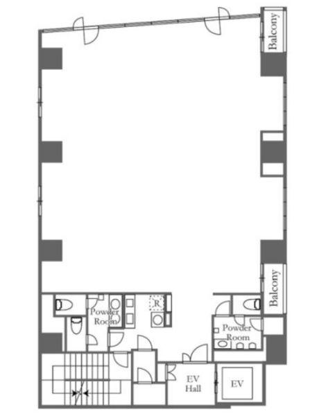
部屋ID:R008591
賃料: 1,222,760円
共益費・管理費:166,740円(税別)
最寄駅1:東京メトロ銀座線「外苑前」駅まで 徒歩2分
現状:空室
所在地: 東京都港区南青山2丁目23-8
成約状況:空室
物件種別:ビル
物件階層:11階建地下1階付き
完成年月:平成22年5月(築16年)
取引形態:ー
EV:あり
掲載日時:2024-08-30
所在階数:4階
方角:
敷金:ー円
礼金:ー円(税別)
保証金:14,673,120円
解約引:ー円
その他費用:ー
火災保険:ー円(非課税)
契約種別:普通借家
契約期間:2年