この物件の情報は「掲載日」時点の内容になります。
お探しの物件の最新の状況は以下ボタンよりお問い合わせお願いします。
お問い合わせ
部屋ID:R007517
賃料: 343,800円
共益費・管理費:76,400円(税別)
最寄駅1:大阪メトロ四つ橋線「西梅田」駅まで 徒歩7分
最寄駅2:JR東西線「北新地」駅まで 徒歩6分
現状:空室
所在地: 大阪府大阪市北区堂島1丁目5-2
成約状況:空室
物件種別:賃貸マンション
物件階層:5階建地下1階付き
完成年月:昭和37年1月(築ー)
取引形態:一般媒介
EV:あり
掲載日時:2023-11-24
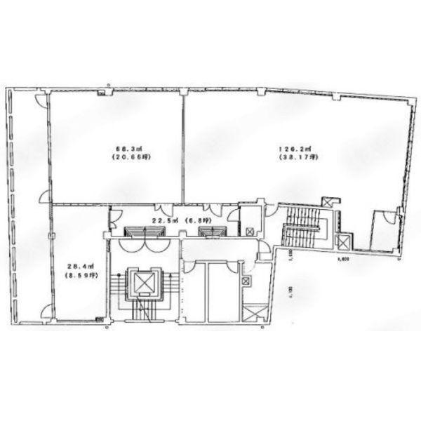
所在階数:2階
方角:
敷金:ー円
礼金:ー円(税別)
保証金:2,750,400円
解約引:1,031,400円
その他費用:ー
火災保険:ー円(非課税)
契約種別:定期借家
契約期間:5年