この物件の情報は「掲載日」時点の内容になります。
お探しの物件の最新の状況は以下ボタンよりお問い合わせお願いします。
お問い合わせ
部屋ID:R007434
賃料: 220,000円
共益費・管理費:0円(税別)
最寄駅1:大阪メトロ谷町線「天神橋筋六丁目」駅まで 徒歩3分
現状:空室
所在地: 大阪府大阪市北区浪花町3丁目24
成約状況:空室
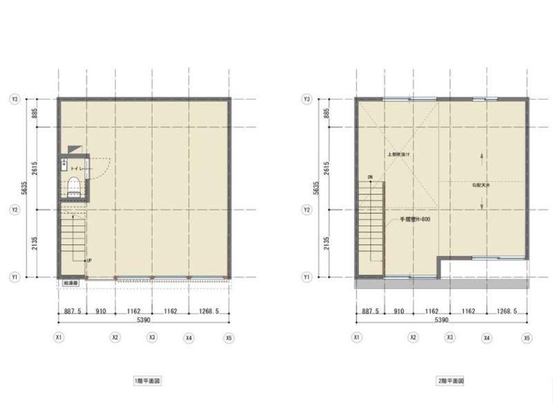
物件種別:ビル
物件階層:2階建
完成年月:昭和24年(築ー)
取引形態:ー
EV:なし
掲載日時:2023-11-06
所在階数:1階
方角:
敷金:400,000円
礼金:220,000円(税別)
保証金:ー円
解約引:ー円
その他費用:ー
火災保険:ー円(非課税)
契約種別:
契約期間: