この物件の情報は「掲載日」時点の内容になります。
お探しの物件の最新の状況は以下ボタンよりお問い合わせお願いします。
お問い合わせ
部屋ID:R006903
賃料: 180,000円
共益費・管理費:0円(税別)
最寄駅1:北大阪急行電鉄「緑地公園」駅まで 徒歩10分
最寄駅2:大阪メトロ御堂筋線「江坂」駅まで 徒歩15分
最寄駅3:阪急千里線「関大前」駅まで 徒歩11分
現状:居住中
所在地: 大阪府吹田市江坂町5丁目17-5
成約状況:居住中
物件種別:賃貸マンション
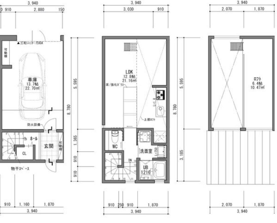
物件階層:2階建
完成年月:平成31年1月(築7年)
取引形態:一般媒介
EV:なし
掲載日時:2023-07-01
所在階数:1-2階
方角:
敷金:0円
礼金:180,000円(税別)
保証金:ー円
解約引:ー円
その他費用:【短期解約違約金】1年未満総賃料2ヶ月、2年未満総賃料1ヶ月 【退去時ハウスクリーニング代】49,500円(税込) 【契約事務手数料】16,500円(税込)
火災保険:ー円(非課税)
契約種別:普通賃貸借
契約期間:2年