この物件の情報は「掲載日」時点の内容になります。
お探しの物件の最新の状況は以下ボタンよりお問い合わせお願いします。
お問い合わせ
部屋ID:R005878
賃料: 216,000円
共益費・管理費:94,500円(税別)
最寄駅1:大阪メトロ御堂筋線「中津」駅まで 徒歩1分
最寄駅2:阪急神戸本線「中津」駅まで 徒歩8分
現状:空室
所在地: 大阪府大阪市北区中津1丁目18-18
成約状況:空室
物件種別:ビル
物件階層:10階建
完成年月:昭和48年3月(築53年)
取引形態:一般媒介
EV:あり
掲載日時:2022-11-19
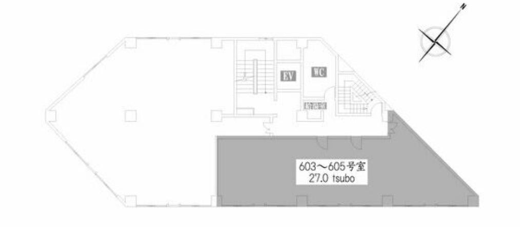
所在階数:6階
方角:
敷金:-円
礼金:-円(税別)
保証金:2,592,000円
解約引:ー円
その他費用:専有部床清掃費用:1,100円/坪(税込)年2回実施 専有部空調機分解洗浄費用:22,000円(税込)5年に1回実施。 ネームプレート費用:27,500円(税込/契約時)
火災保険:ー円(非課税)
契約種別:普通賃貸借
契約期間:2 年