この物件の情報は「掲載日」時点の内容になります。
お探しの物件の最新の状況は以下ボタンよりお問い合わせお願いします。
お問い合わせ
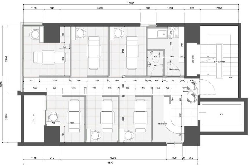
部屋ID:R005781
賃料: 248,940円
共益費・管理費:0円(税別)
最寄駅1:大阪メトロ谷町線「天神橋筋六丁目」駅まで 徒歩1分
最寄駅2:大阪メトロ堺筋線「天神橋筋六丁目」駅まで 徒歩1分
現状:空室
所在地: 大阪府大阪市北区天神橋6丁目7-10
成約状況:空室
物件種別:ビル
物件階層:10階建
完成年月:令和2年8月(築6年)
取引形態:一般媒介
EV:あり
掲載日時:2022-10-20
所在階数:6階
方角:
敷金:ー円
礼金:ー円(税別)
保証金:1,583,640円
解約引:ー円
その他費用:造作譲渡金500万(税別)あり
火災保険:ー円(非課税)
契約種別:普通賃貸借
契約期間:2年